UZ SĀKUMU :: DISKUSIJAS :: SLUDINĀJUMI :: UZDOD JAUTĀJUMU
Dienas jautājums :
Building.Lv Forums
Palidziet izplanot dzivokla sienas?
Autors:
KasparsN
(85.10.211.---)
Datums: 20/03/2015 15:47
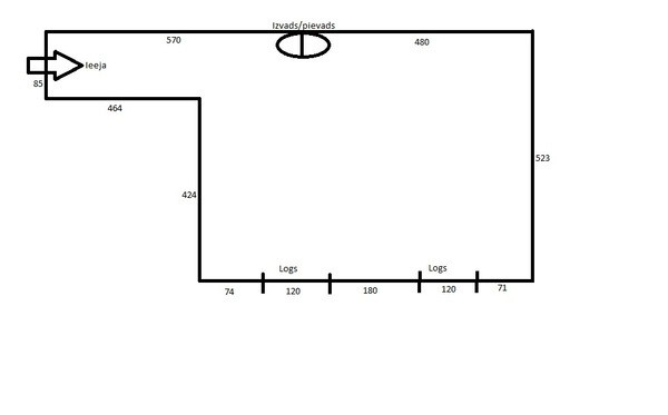
Sobrid ir tuksa telpa, sada:
[dating.inbox.lv]
Ko velos:
- dusu+WC
- virtuve + viesitaba
- gulamistaba.
Velos izlietni ievietot tur kur - 424 cm,ka lai to izdara - galvenais trauceklis ieeja + slipums.
Kada ir kopeja platiba dzivoklim - var kads aprekinat?
[dating.inbox.lv]
Ko velos:
- dusu+WC
- virtuve + viesitaba
- gulamistaba.
Velos izlietni ievietot tur kur - 424 cm,ka lai to izdara - galvenais trauceklis ieeja + slipums.
Kada ir kopeja platiba dzivoklim - var kads aprekinat?
Re: Palidziet izplanot dzivokla sienas?
Autors:
PikkO
(85.10.211.---)
Datums: 20/03/2015 16:36
par plānojuma skici 2000,- EUR
Re: Palidziet izplanot dzivokla sienas?
Autors:
KasparsN
(85.10.211.---)
Datums: 20/03/2015 17:30
Paldies.
p.s. Ja kadam vajag ko izplanot - izplanosu pa 1500.
p.s. Ja kadam vajag ko izplanot - izplanosu pa 1500.
Re: Palidziet izplanot dzivokla sienas?
Autors:
nu tā
(85.10.211.---)
Datums: 20/03/2015 17:47
KasparsN Wrote:
> Kada ir kopeja platiba dzivoklim - var kads
> aprekinat?
Tā kāda augstākā matemātika? Manuprāt, trešās klases uzdevums. Ak nē - tur jau izmēri "neštimmē", vai arī sienas nav perpendikulāras? Šā vai tā aptuveni 33 m2 sanāks.
> Kada ir kopeja platiba dzivoklim - var kads
> aprekinat?
Tā kāda augstākā matemātika? Manuprāt, trešās klases uzdevums. Ak nē - tur jau izmēri "neštimmē", vai arī sienas nav perpendikulāras? Šā vai tā aptuveni 33 m2 sanāks.
Re: Palidziet izplanot dzivokla sienas?
Autors:
parks2007
(85.10.211.---)
Datums: 20/03/2015 18:00
Domāju,ka 33,5 m2 nesanāks gan viesistaba,gan guļamistaba,bet gan viena telpa,kas apvienota ar virtuvi un vēl stipri jālauza galva,kur to dušas telpu izveidot....
Re: Palidziet izplanot dzivokla sienas?
Autors:
Andris_
(85.10.211.---)
Datums: 20/03/2015 18:31
Savulaik īrēju vienistabas dzīvoklīti 35m2 - bija gan koriors, gan duša, gan vannas istaba, gan virtuve, gan viesistaba (kopā ar guļamistabu). Nez cik šie 33 kvadrātmetri ir izsakāmi Āzijas tautu izpratnē...Tā, ka nav nekas neizdarāms - yotūbī var atrast dažādus kompaktrisinājumu variantus :)
Neko nemācēšu ieteikt - kanalizācijas trubām nav diži varianti - vai nu laid cauri grīdai pagrabam vai apakšējiem kaimiņiem pa grieztiem, vai pacel grīdas līmeni par kanalicācijas trubu tiesu.
Neko nemācēšu ieteikt - kanalizācijas trubām nav diži varianti - vai nu laid cauri grīdai pagrabam vai apakšējiem kaimiņiem pa grieztiem, vai pacel grīdas līmeni par kanalicācijas trubu tiesu.
Re: Palidziet izplanot dzivokla sienas?
Autors:
jtdesign
(85.10.211.---)
Datums: 21/03/2015 11:54
~29 m2 + pilnīgi neizmantojama ~5-metrīga "desa" (ja ticam, ka 85 cm ir šī gaiteņa platums). Var ierīkot šautuvi dajebkam, no šauriņām līdz gaisenei, un izīrēt šaut mācīties gribošajiem.
Visas slapjās lietas, kam vajag kanalizāciju, pie sienas, kur ievadi-izvadi, citādāk 2-3% kritums uz ~ 5m ir 10-15 cm (LBN 221-98). Celt grīdu par šādu augstumu saprātīgi tikai tad, ja kādu vēl papildu iemeslu dēļ vajag - siltināšana, skaņu izolācija, citi tīkli utml.
Visas slapjās lietas, kam vajag kanalizāciju, pie sienas, kur ievadi-izvadi, citādāk 2-3% kritums uz ~ 5m ir 10-15 cm (LBN 221-98). Celt grīdu par šādu augstumu saprātīgi tikai tad, ja kādu vēl papildu iemeslu dēļ vajag - siltināšana, skaņu izolācija, citi tīkli utml.
Re: Palidziet izplanot dzivokla sienas?
Autors:
specs
(85.10.211.---)
Datums: 24/03/2015 09:56
PikkO Wrote:
-------------------------------------------------------
> par plānojuma skici 2000,- EUR
Radās jautājums - un tiešām kāds kaut ko tādu maksā? No otras puses - ja ir cilvēki, kas nevar aprēķināt kvadratūru...
Lai vai kā, autoram iesaku pie izvadiem būvēt WC būdu un aiz tās stūrī virtuvi, kur gar ārsienām L veidā izvietot iekārtu. Caurules no virtuves stiept pa sienu vajadzīgā kritumā (iekaļam, paslēpjam zem iekārtas) un ar grīdu nekas nebūs jādara. Par divām istabām gan jāaizmirst.
-------------------------------------------------------
> par plānojuma skici 2000,- EUR
Radās jautājums - un tiešām kāds kaut ko tādu maksā? No otras puses - ja ir cilvēki, kas nevar aprēķināt kvadratūru...
Lai vai kā, autoram iesaku pie izvadiem būvēt WC būdu un aiz tās stūrī virtuvi, kur gar ārsienām L veidā izvietot iekārtu. Caurules no virtuves stiept pa sienu vajadzīgā kritumā (iekaļam, paslēpjam zem iekārtas) un ar grīdu nekas nebūs jādara. Par divām istabām gan jāaizmirst.
Re: Palidziet izplanot dzivokla sienas?
Autors:
nu tā
(85.10.211.---)
Datums: 24/03/2015 15:21
specs Wrote:
-------------------------------------------------------
>
> Radās jautājums - un tiešām kāds kaut ko
> tādu maksā? No otras puses - ja ir cilvēki, kas
> nevar aprēķināt kvadratūru...
Es ceru, ka cilvēks jokoja par tiem 2000 eur...
Lai plānotu (vai kaut ko ieteiktu) būtu labi zināt, cik cilvēku dzīvos un kāds viņu dzīvesveids. Viens cilvēks? Vīrs un sieva? Vai bieži būs viesi? Vai vienam patīk skaļa mūzika, kamēr otrs guļ? Utt.
-------------------------------------------------------
>
> Radās jautājums - un tiešām kāds kaut ko
> tādu maksā? No otras puses - ja ir cilvēki, kas
> nevar aprēķināt kvadratūru...
Es ceru, ka cilvēks jokoja par tiem 2000 eur...
Lai plānotu (vai kaut ko ieteiktu) būtu labi zināt, cik cilvēku dzīvos un kāds viņu dzīvesveids. Viens cilvēks? Vīrs un sieva? Vai bieži būs viesi? Vai vienam patīk skaļa mūzika, kamēr otrs guļ? Utt.
Re: Palidziet izplanot dzivokla sienas?
Autors:
specs
(85.10.211.---)
Datums: 26/03/2015 11:41
Es domāju, ka pie šādiem kvadrātmetriem, nav jēgas iespringt uz dzīvesveida izpēti, jo nekas vairāk par vienistabnieku šeit nebūs.
Re: Palidziet izplanot dzivokla sienas?
Autors:
KasparsN
(85.10.211.---)
Datums: 28/03/2015 16:14
Nu ko lai saka par tiem rekiniem - nesm uspec sais joma.
Dzivoklis bus irei domats.
Ieprieks pec plan bij 2 istabu dzivoklis, bez WC.
Lai nav jataisa jauna tema - ka ir ar tiem smalcinatajiem ko liek aiz poda, jo dzivokli nav iespeja ievilkt lielo 100 trubu, ir tikai maza, bet obligati vajag WC dzivokli?
Dzivoklis bus irei domats.
Ieprieks pec plan bij 2 istabu dzivoklis, bez WC.
Lai nav jataisa jauna tema - ka ir ar tiem smalcinatajiem ko liek aiz poda, jo dzivokli nav iespeja ievilkt lielo 100 trubu, ir tikai maza, bet obligati vajag WC dzivokli?
Re: Palidziet izplanot dzivokla sienas?
Autors:
jtdesign
(85.10.211.---)
Datums: 28/03/2015 19:24
Man domāts, ka vienkāršāk, lētāk un drošāk būs vajadzīgā izmēra caurule nevis vietējos platuma grādos ne pārāk labi pazīstama ierīce (neesam USA, kur tāda katras virtuves izlietnei pievienota).
Bez labierīcībām būs cits īrnieku kontingents nekā varētu sacerēties, ja viss ir nodrošināts. Pie tam apšaubu, vai legāli mūsdienās ko tādu var izdarīt.
Bez labierīcībām būs cits īrnieku kontingents nekā varētu sacerēties, ja viss ir nodrošināts. Pie tam apšaubu, vai legāli mūsdienās ko tādu var izdarīt.
Re: Palidziet izplanot dzivokla sienas?
Autors:
KasparsN
(85.10.211.---)
Datums: 28/03/2015 22:03
Kas nav saprotams tur nav iespejams izbuvet (5 stavs) "100-nieci" trubu.
Protams ja nav WC tad tadam dzivokli vispar nav vertibas, kur javelkas pogi, kas izskatas briesmigi + nav iespejams pievienoties WC kas ir kapnu telpa, jo WC ir aiz trepem
Protams ja nav WC tad tadam dzivokli vispar nav vertibas, kur javelkas pogi, kas izskatas briesmigi + nav iespejams pievienoties WC kas ir kapnu telpa, jo WC ir aiz trepem